Conjunto de tres viviendas
Barcelona
Sobre
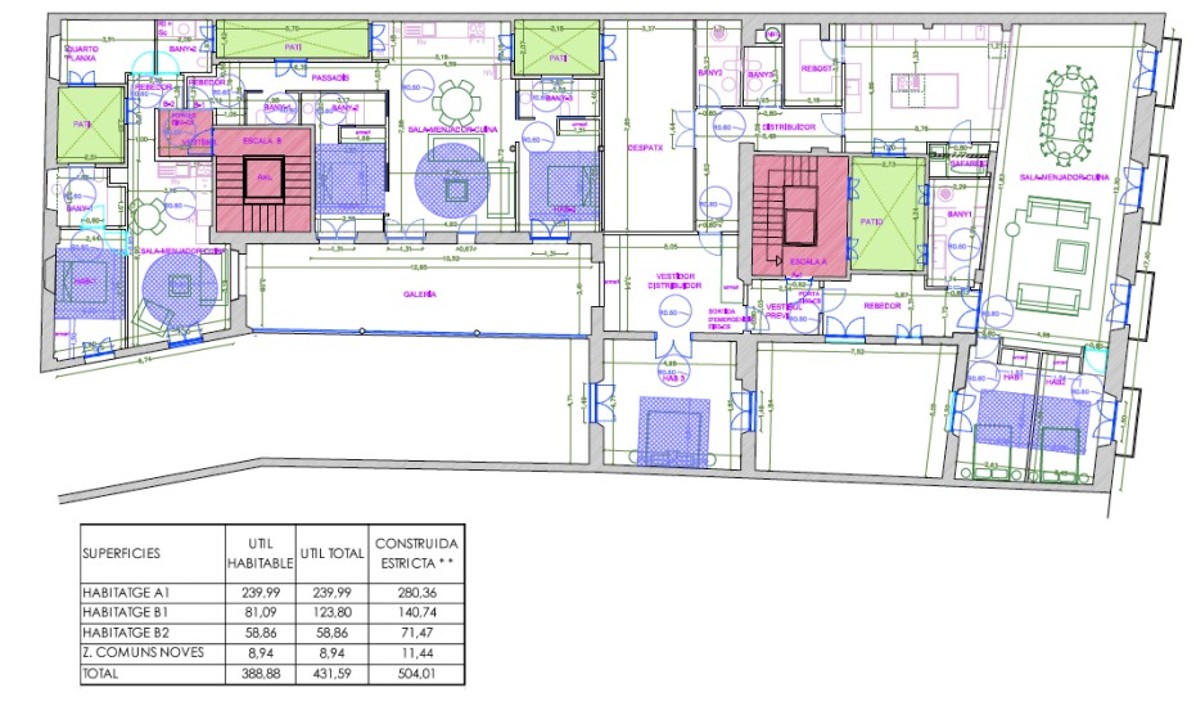
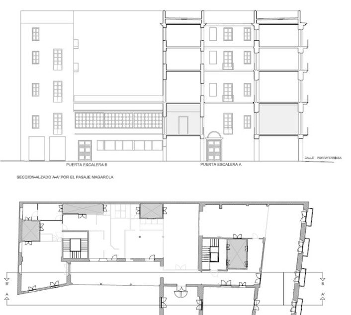
Se ofrece a la venta un conjunto de tres viviendas a finalizar, situadas en una elegante finca regia con ascensor en el corazón del Barrio Gótico. La superficie total construida es de 504,01 m², incluyendo 11,44 m² de zonas comunes. La propiedad se puede adquirir de forma conjunta o por separado, representando una oportunidad excepcional.
La ubicación es inmejorable, en una de las zonas más transitadas y comerciales del centro histórico de Barcelona, rodeada de todos los servicios, transporte público y a pocos minutos de las principales atracciones de la ciudad.
Esta propiedad representa una oportunidad excepcional, preferentemente para promotores, aunque también atractiva para inversores. La alta demanda tanto residencial como turística asegura una excelente rentabilidad.
El conjunto está compuesto por tres viviendas independientes, cada una con características únicas:
• Primer piso: 71,47 m² distribuidos en dos dormitorios dobles y dos baños completos, uno en suite. Está libre y necesita reforma, lo que permite adaptarla completamente al gusto del comprador.
• Segundo piso: 140,74 m² con tres habitaciones dobles y dos baños, uno en suite. Libre y en proceso de reforma, con las instalaciones a medio terminar y derribo ya realizado, facilitando el inicio de las obras.
• Tercer piso: 280,36 m², libre y reformado, ofrece un espacio amplio y versátil con múltiples posibilidades de redistribución. La cocina y uno de los baños ya están terminados.
Detalles
Estado: En Venta
Precio: 1.500.000€
Habitaciones: 2
Baños: 2
Provincia: Barcelona
Municipio: Barcelona
M² Construidos: 504,01 m²
 
						
 
									 
									 
									 
									